


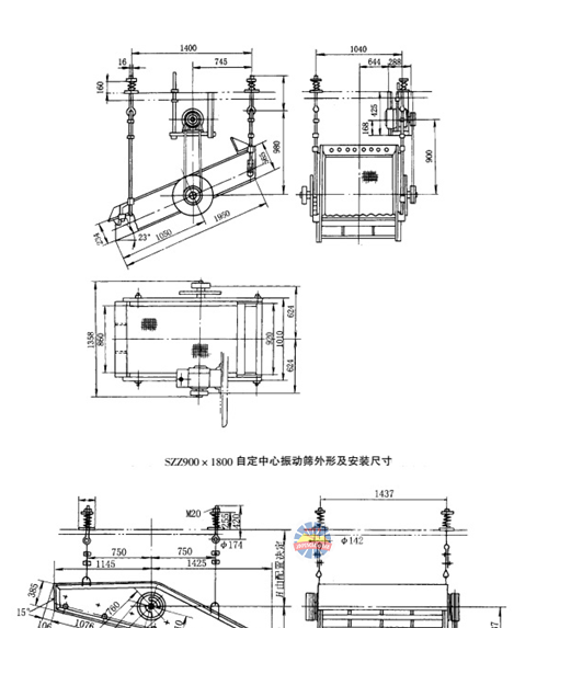
自定中心振动筛结构主要由筛箱、激振器、悬挂(或支承)装置及电动机等组成。电动机经三角皮带,带动激振器主轴旋转,由于激振器上的不平衡产生了离心惯性力的作用,使筛箱获得振动。改变激振器偏心重,可以获得不同振幅。


自定中心振动筛结构主要由筛箱、激振器、悬挂(或支承)装置及电动机等组成。电动机经三角皮带,带动激振器主轴旋转,由于激振器上的不平衡产生了离心惯性力的作用,使筛箱获得振动。改变激振器偏心重,可以获得不同振幅。
1)筛上物料在振动作用下能达到很好的松散和分层;
2)该振动筛的配重质量大小可以调节,可根据生产要求调节筛子振幅大小;
3)当给矿量发生变化时,振幅也变化。当给矿量少时振幅加大振动加剧;给矿量多时振幅变小。给矿量的变化将影响“动力平衡”,从而使皮带轮中心产生一些振动;
4)适用于中、细粒筛分而不适应粗物料筛分。
| 自定中心振动筛技术性能 | |||||||
| 型号 | 规格 | 最大给料粒度(mm) | 处理能力 (t/h) | 电机 | 重量 | 备 注 | |
| 型号 | 电机功率 (kw) | (kg) | |||||
| SZZ0918 | 900×1800 | 40 | 20~25 | Y100L1-4 | 2.2 | 420 | 吊式 |
| SZZ0918 | 553 | 座式 | |||||
| 2SZZ0918 | 570 | 座式 | |||||
| SZZ1225 | 1250×2500 | 100 | 100 | Y132S-4 | 5.5 | 1020 | 吊式 |
| SZZ1225 | 1330 | 座式 | |||||
| 2SZZ1225 | 1320 | 吊式 | |||||
| 2SZZ1225 | 1335 | 座式 | |||||
| SZZ1530 | 1500×3000 | 200 | Y132M-4 | 7.5 | 1650 | 吊式 | |
| SZZ1530 | 1700 | 座式 | |||||
| 2SZZ1530 | 2870 | 吊式 | |||||
| SZZ1540 | 1500×4000 | 100 | 90-200 | Y160L-4 | 15 | 3412 | 座式 |
| 2SZZ1540 | 1500×4000 | 100 | 250 | Y160L-4 | 15 | 4240 | 座式 |
| SZZ1836 | 1800×3600 | 150 | 300 | Y180M-4 | 18.5 | 4500 | 吊式 |
| 2SZZ1836 | 5616 | 座式 | |||||
如果您正在寻找相关产品,或者有其他问题,可随时拨打金鹏矿业机械服务热线,或点击下方按钮与我们在线交流!